鳳凰灣
全包裝修
平層
現代簡約
100㎡-150㎡
配色上,米色布藝與木飾,賦予空間優雅含蓄的氣質。粗細有致,克制應用的金屬線條,通過豎橫有序的伸展,“構成”出藝術品味。軟裝里,一抹精致的 “靜謐藍”在米白的背景下,顯得優雅而迷人
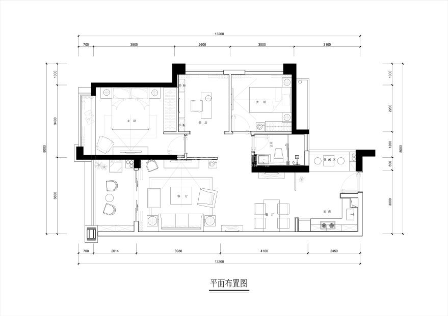
平面圖
![]()
客廳
![]()
主人房
![]()














